SB025 Xross Nakaitabashi 2
- Linya ng Tobu Tojo Nakaitabashi Station 1 minutong lakad
- Linya ng Toei Mita Istasyon ng Itabashihonmachi 16 minutong lakad
@.jpg)
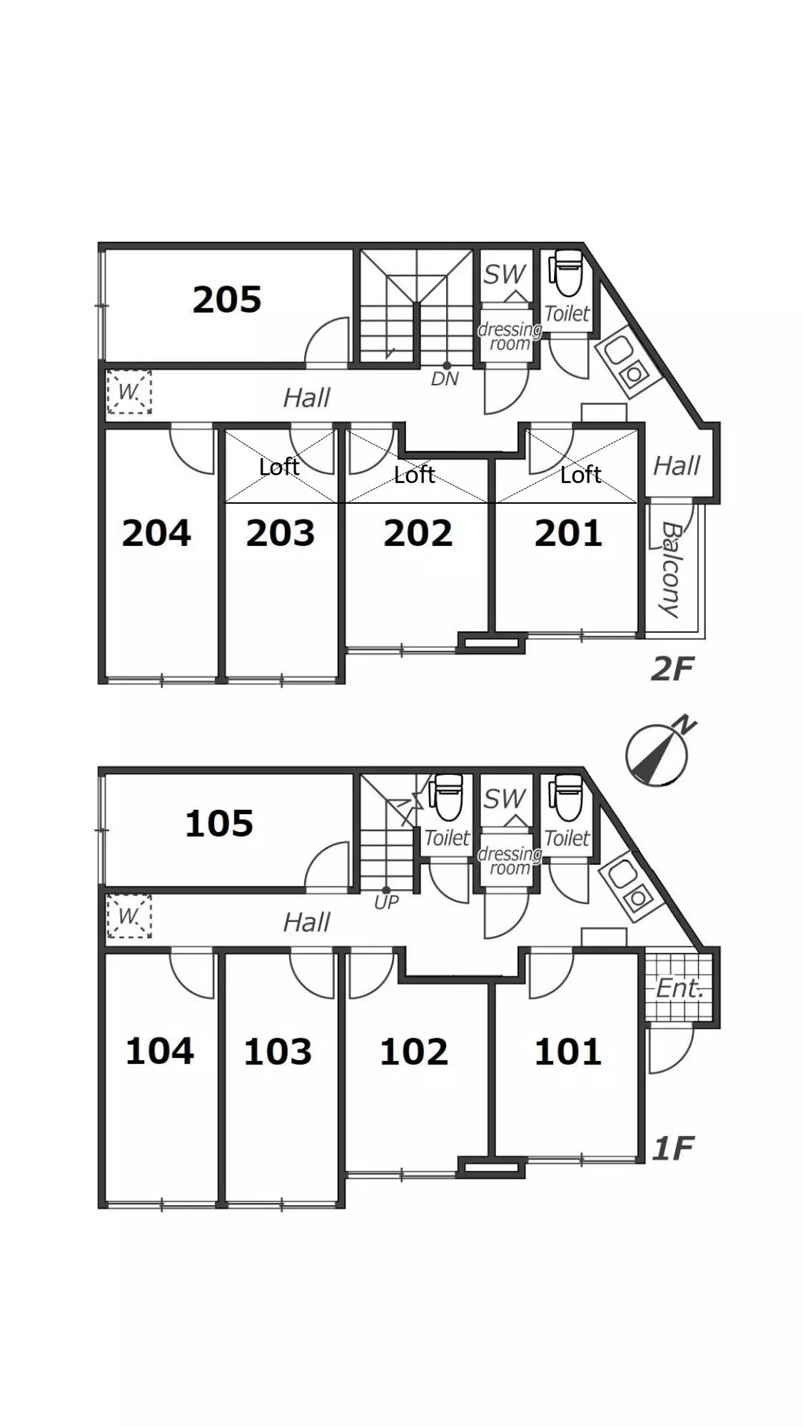
| dormitoryo | Nakaplano ang mga bakanteng kwarto 2026-05-16~ 24,800 yen~ |
|---|
- Walang security deposit
- Walang key money
- 0 yen na bayad sa ahensya
-
Istasyon ng Shinjuku
16 minuto
-
Istasyon ng Ikebukuro
7 minuto

